
3CX300A1
1ª Parte:
1) Dois projetos de Satoru Kobayashi
a) Building a 3CX300A1 Single Stereo amplifier
b) 30W Push-Pull 3CX300A1 Monoblock, Satoru. Kobayashi
I) Building a 3CX300A1 Single Stereo amplifier
A partir da Expo ’97 o Sr. Kobayashi achou que deveria criar um amplificador a partir destas novas e magistrais válvulas. De uma forma ou outra já se conhecia seu desempenho em áudio que rivalizava a qualidade sonora das famosas WE300B já aclamada pelos audiófilos japoneses. Neste mesmo momento a companhia TEC-SOL que representava os interesses da Svetlana no Japão solicitou a Kobayashi que realizasse um amplificador estereofônico simples de montagem fácil, ao alcance do montador iniciante e que pudesse popularizar o emprego desta nova válvula. A resposta foi imediata. Nada mais simples que um SE utilizando componentes de fácil aquisição. Eis que o equipamento ficou extremamente ao alcance dos usuários montadores, pois um amplificador SE de 2x 15W teve um custo final de 300 dólares. O resultado sonoro ultrapassou todas as expectativas. O artigo foi publicado na revista japonesa em MJ Áudio Technology de setembro de 1999. Primeiramente 30W finais é mais que suficiente para qualquer residência, e a unidade não passa de dois dias de montagem mesmo para iniciantes. O resultado é som de triodo, que com a potência em questão é algo extraordinário, pois equivale a um PP DE 2A3 .

Vista do protótipo montado.

Circuito de amplificação (apenas um canal).
A amplificação desta unidade utiliza uma 12AX7/ECC83 com o primeiro triodo amplificando o sinal e o segundo como seguidor de catodo. Emprega-se acoplamento direto para mínimo desvio de fase e seguidor de catodo para excitação da válvula de saída em baixa impedância para melhor estabilidade e melhor resposta nas altas freqüências. Como expediente poupa tempo, resolvi copiar diretamente a indicação do manual de válvulas e aproveitar um circuito pré-testado com UV 801. Usamos 16dB de realimentação negativa sem descriminação de freqüências para melhor desempenho da unidade ao longo de sua vida útil. Na verdade não necessitaríamos de realimentação, pois a qualidade do triodo é extraordinária e possui baixa distorção inerente. Afinal, o uso de pentodo é sempre acompanhado de artifícios para melhora de seu desempenho (Ultralineares, realimentação em catodo, realimentação em grade etc. O Triodo já possui baixa resistência interna que resolve naturalmente os problemas de variação de impedância e reatâncias espúrias ao longo do espectro de áudio Neste triodo a extraordinária transcondutância desta unidade, 20.000 micromohs, resolve praticamente todos os problemas de baixo ganho alegados aos triodos desde então: esta transcondutância, inédita em outras válvulas do tipo, que é maior que a dos pentodos usuais, associada a possibilidade de altas tensões em placa sem problemas de encurtamento de vida para a válvula, torna obsoleto o emprego de realimentação negativa pois proporciona ganho compatível com os pentodos sem introduzir distorção. Observe que os demais circuitos apresentados este segmento já não possuem qualquer realimentação negativa. Observe que com toda a simplicidade o circuito aqui apresentado compete diretamente com a 6550 apresentando ainda muito mais dinâmica de áudio e distorção ainda mais baixa, sem contar com compacidade, durabilidade e robustez extra oferecida pela 3CX300A1, tudo isto, pelo mesmo preço final.
A nosso ver, o melhor do estado da arte nos dias atuais.
Algumas idéias experimentais foram passadas por Eric Balbour e os componentes utilizados estão super dimensionados para uma boa durabilidade. O amplificador ficou limitado em 15W por canal para evitarmos o aumento da tensão de placa do estagio final com as conseqüências negativas causadas pelo aumento de calor que seria gerado no aparelho.
A fonte é bastante convencional e utilizamos retificação e filtragem nos filamentos das 12AX7 utilizando um estabilizador 7812. O mesmo ramal foi usado para instalar um ventilador grande do tipo usado em computadores. Este fica instalado na parte inferior do chassi e da sua exaustão através das aletas das 3CX300A1. O transformador de força empregado é capaz de fornecer 200 mA de alta tensão de alimentação, o que é suficiente para a operação das válvulas. E -55V para a polarização das válvulas de saída.

Circuito da fonte de alimentação. O mesmo lay-out básico com pequenas modificações é empregado na versão PP Monoblock.
Abaixo sugestão para disposição dos componentes e disposição geral do chassis.
Dimensões do chassi: Placa com 400m x 250mm: Profundidade 60mm.

Dicas de construção


Disposição dos componentes da fonte de alimentação em placa de circuito impresso.
II) 30W Push-Pull 3CX300A1 Monoblock
Artigo publicado na revista
AudioXpress Janeiro 2001
Este circuito foi uma conseqüência natural do anterior. Tão logo foi ele anunciado, a Plitron que já havia fornecido o transformador de fonte para o modelo anterior, solicitou a Kobayashi que construísse uma versão PP utilizando seus transformadores. Este foi o produto final. Este artigo foi publicado na revista AudioXpress de Janeiro de 2001 e obviamente seguiu os parâmetros iniciais do projeto SE previamente publicado em MJ Áudio Technology que descrevemos anteriormente, e segue em princípio sempre a extraordinária simplicidade de Kobayashi. Este circuito tem uma sensível influência dos antigos Williamson e ao mesmo tempo do Ultra Linear de David Hafler e Herbert Keroes publicado em 1952 introduzindo algumas sofisticações atualizadas. Sintetiza também idéias utilizadas nos LEAK e Mullard. No amplificador Monobloco de Kobayashi é utilizado um estágio de entrada tipo diferencial que pode ser adaptado para entradas balanceadas e há um acoplamento direto entre estágios bem semelhante aos circuitos “cauda longa”empregados nos LEAK e Mullard. Neste circuito foram usadas duas etapas impulsoras em cascata com acoplamento direto. O primeiro com triodos de alto mu tipo 12AX7 e o segundo com triodos de médio mu do tipo 6N1P tipo muito próximo às ECC88/6DJ8. Neste circuito o duplo estágio de amplificação tem por fim equalizar o sinal para as duas válvulas de saída e este procedimento fica a cargo do transistor NPN 2SC1815 comum aos catodos do primeiro estágio amplificador, que também suprime uso de uma fonte negativa no estágio. Todo o sistema amplificador/driver/inversor de fase entrega 84V grade a grade na etapa de saída trabalha que trabalha em estrita categoria A1 –no mesmo sistema da versão SE que demonstramos acima. Considerando a baixa distorção da etapa PP com o cancelamento de harmônicos pares, decidimos que todo o circuito teria realimentação Zero.
Nota: Neste circuito assim como no anterior o resistor de catodo de 1 Ohm tem por fim monitorar a corrente das válvulas através da tensão de referencia em catodo. Também monitora o equilíbrio entre as válvulas de saída.

Visão de uma unidade de protótipos montados

Vista do par de protótipos montados.
Nos quadros 1 , 2 e 3 temos respectivamente :
1=Visão dos resultados da 12AX7 montada como amplificador diferencial em duas diferentes situações

2=Visão dos resultados comparativos da 6N1P e da 6FQ7 como seguidoras de catodo. Em função das características escolhemos a 6N1P por apresentar menor impedância de saída e maior ganho no estágio.

3=Lista de peças empregadas no amplificador


Circuito de amplificação. A corrente em repouso das 3CX300A1 é da ordem de 240ma.
O transformador de saída deve ter impedância de 2KOhms no primário, O Plitron PAT 4008 nos dá exatos 1K98 Ohms ao operar em carga de 8 Ohms. Exatos para nossa finalidade.


Modulo com MOS FET IRFPC40 e três diodos Zener de 150V mais os componentes associados.

Circuito constante nas plaquetas acima.
Fonte de alimentação segue os princípios da anterior usa outro tipo de transformador com um novo regulador 7820 e filamentos diretamente no AC e retificação apenas para o ventilador, agora montado na base do chassis. Utiliza agora um choque de filtro eletrônico com base num MOS FET IRFPC40 com regulagem de 450V em sua porta. Os projetos dos transformadores são de Menno Van der Veen de quem descrevemos seus amplificadores em outras partes deste site. Os capacitores de 100uF (47+47) x 500V podem ser substituídos por dois capacitores em série de 200uF x 350V cada um em paralelo com um resistor de 470K 2W.


Acima e abaixo sugestão para disposição dos componentes e construção geral do chassis. Note-se que o choque de filtro é constituído pelo MOS FET IRFPC40 e os três diodos Zener de 150V.
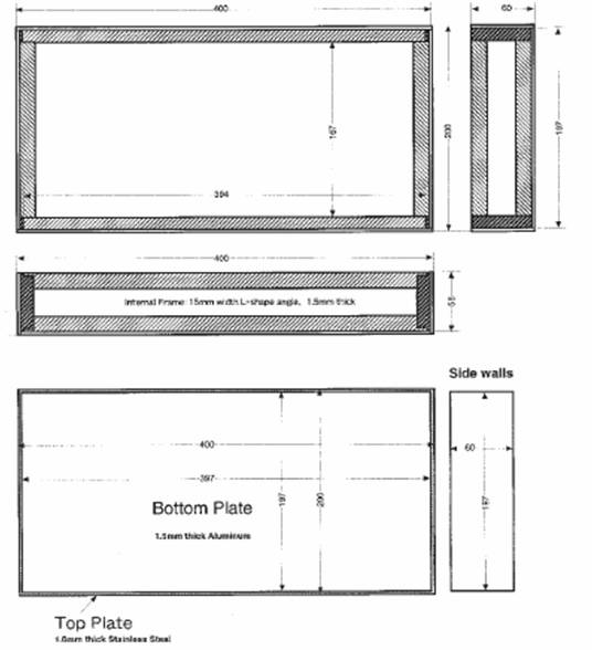
Dimensões do chassi: Placa com 400mm x 200mm: Profundidade 60mm.

Montagem do ventilador no fundo do chassi.

Os soquetes das 3CX300A1 são montados no chassis de maneira semelhante ao projeto anterior com sub-chassi rebaixado para ventilação. Este leva também as 12AX7 e 6N1P. As chaminés quadradas são construídas de chapa metálicas de aço inoxidável e fixadas diretamente no chassi. Utilizamos como topo das chaminés metálicas, pequenos ralos de banheiro de aço inoxidável. As figuras abaixo elucidam a explicação.


Detalhes da montagem das válvulas e chaminé de aço inoxidável.
Segundo Kobayashi o som é limpo e definido. A resposta se estende até os 100KHz até os 10W, e a distorção se mantém por volta dos 0.3% até 1W; 1 -1-5% até os 10W e atinge 5% no ponto de corte perto dos 36W, sem uso de realimentação!
Características dos transformadores Plitron utilizados no projeto.


xxxxxxxxxxxxxxxxxxxxxx
>>>>>